Permit Application Status

PRRES20220419


In order to schedule inspections, you need to be signed in.

 / 

Note: You can collapse and expand individual sections by clicking the header of the section you wish to collapse/expand.

Summary
PRRES20220419
Building Permit - Residential
Closed
CLAYTON PROPERTIES GROUP INC
ALTERATION SINGLE FAMILY
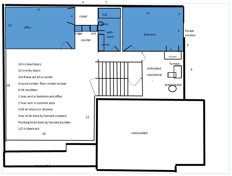
BASEMENT FINISH. Letters sent no responce closed.
02/01/2022
02/03/2022
06/12/2024
Locations
Contacts
Brian Walton, Address:334 NW Ambersham Dr., Phone:(816) 522-7714  
brian.walton512@gmail.com, Phone:(816) 522-7714  
CLAYTON PROPERTIES GROUP INC, Address:120 SE 30TH ST  
AIR SUMMIT HEATING & COOLING, Address:4086 SW NORMANDY DR, Phone:(816) 537-0585  
MBM HOME RESTORATION, Address:1008 SE COUNTRY LANE TRL, Phone:(816) 977-4874  
MBM HOME RESTORATION, Address:1008 SE COUNTRY LANE TRL, Phone:(816) 977-4874  
Reviews
Review Type Outcome Est. Completion Date Completed
Licensed Contractors Approved 02/03/2022 02/03/2022
Andrea Sessler
Fees
Paid Fees Amount Paid Owing Date Paid
Valuation Fee for Add/Alter Single Family $119.82 $119.82 Paid 02/03/2022
Outstanding Fees Amount Paid Owing Date Paid
No outstanding fees.


$0.00
Inspections
Inspection Outcome Requested Scheduled Date Inspected
All Rough Inspection - Residential Failed 3/7/2022 3/7/2022 03/07/2022
Misc
Corrective Action Required
03/07/2022
-Need fire blocking per code R302.11 Vertical at the ceiling Horizontal at intervals not exceeding 10’ Enclosed spaces such as soffits, fur out ductwork chase - R302.7 under stairs protection, provide 1/2 “ gypsum board -AFCI breakers required -GFCI breaker required in bathroom and bar area -Provide combustion air high and low within 12” of floor and ceiling -Clean outs to remain accessible - complete Install bathroom exhaust vent 3” flex only allows 5’ replace with 4” -Boca plate bar and bathroom sill and soffit at DWV -Handrail on stairs -Boca plate DWV sill and soffit at bedroom with electrical panel Boca plates at sill south exterior wall 2 DWV
All Rough Inspection - Residential Passed 3/21/2022 3/21/2022 03/21/2022
Misc
Resolved
03/21/2022
-Need fire blocking per code R302.11 Vertical at the ceiling Horizontal at intervals not exceeding 10’ Enclosed spaces such as soffits, fur out ductwork chase - R302.7 under stairs protection, provide 1/2 “ gypsum board -AFCI breakers required -GFCI breaker required in bathroom and bar area -Provide combustion air high and low within 12” of floor and ceiling -Clean outs to remain accessible - complete Install bathroom exhaust vent 3” flex only allows 5’ replace with 4” -Boca plate bar and bathroom sill and soffit at DWV -Handrail on stairs -Boca plate DWV sill and soffit at bedroom with electrical panel Boca plates at sill south exterior wall 2 DWV
Documents & Images
Date Uploaded File Type Document Name
02/02/2022 Scope of Work SCOPE OF WORK
02/03/2022 Approved Plans APPROVED DRAWINGS
02/03/2022 Drawing walton basement finish 1
02/03/2022 Permit DS Building Permit
02/03/2022 Receipt Receipt for transaction:2022-000612
03/07/2022 Letter INSPECTION SUMMARY
03/21/2022 Letter INSPECTION SUMMARY
09/19/2022 Letter Codes 180 Day Letter
02/06/2023 Letter Codes 140 Day Letter
08/24/2023 Letter Codes 140 Day Letter
10/03/2023 Letter Codes 180 Day Letter
Upload Documents

Guidelines For Electronically Submitting Documents:

  • Submitted documents should be under 100MB in size.
  • Accepted file extensions:
    • pdf, jpg, xls, doc, xlsx, docx, dwg
  • All plans shall be to scale.
  • Recommended naming conventions:
    • Keep filename consistent.
    • Avoid the use of non-friendly filenames. (ex. k9dk38fj3.pdf)
    • Avoid inappropriate language in filenames.
  • Submitted documents will be stamped at the conclusion of the review.
    • The stamp will be placed in the upper right hand corner of the document. It is recommeded that this area, to the extent possible, be left blank so that no information is lost when the the stamp is applied.
Remember to click the Upload Document button. If you are applying for a New permit, make sure to click the "next step" button after you have completed the upload of documents

Select any documents you wish to provide:





Portal Home