Permit Application Status

PRRES20251343


In order to schedule inspections, you need to be signed in.

 / 

Note: You can collapse and expand individual sections by clicking the header of the section you wish to collapse/expand.

Summary
PRRES20251343
Building Permit - Residential
Final Completion
DJ23 INVESTMENTS LLC
ALTERATION SINGLE FAMILY
BASEMENT FINISH / HOMEOWNER DOING THE WORK
04/08/2025
04/08/2025
06/12/2025
Locations
Contacts
Ted Sederwall, Address:1909 SW Hightown Dr., Phone:(816) 244-1210  
swildsturf@gmail.com  
DJ23 INVESTMENTS LLC, Address:7200 W 132ND ST  
Reviews
Review Type Outcome Est. Completion Date Completed
Licensed Contractors Approved 04/08/2025 04/08/2025
Brandon Kalwei
Fees
Paid Fees Amount Paid Owing Date Paid
Valuation Fee for Add/Alter Single Family $120.47 $120.47 Paid 04/08/2025
Outstanding Fees Amount Paid Owing Date Paid
No outstanding fees.


$0.00
Inspections
Inspection Outcome Requested Scheduled Date Inspected
All Rough Inspection - Residential Failed 4/28/2025 4/28/2025 04/28/2025
Misc
Corrective Action Required
04/28/2025
-Fireblock furr downs in Basement where missing -move smoke carbon away from bathroom 3’
All Rough Inspection - Residential Passed 4/29/2025 4/29/2025 04/29/2025
Misc
Resolved
04/29/2025
-Fireblock furr downs in Basement where missing -move smoke carbon away from bathroom 3’
Final Inspection - Residential Passed 6/12/2025 6/12/2025 06/12/2025
Documents & Images
Date Uploaded File Type Document Name
04/08/2025 Activity Document APPLICATION
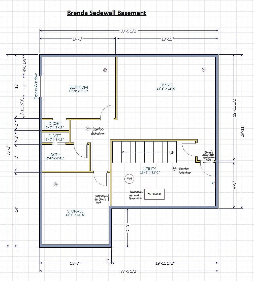
04/08/2025 Plans APPROVED BASEMENT FINISH.pdf
04/08/2025 Permit DS Building Permit
04/08/2025 Receipt Receipt for transaction:2025-002119
04/28/2025 Letter INSPECTION SUMMARY
04/29/2025 Letter INSPECTION SUMMARY
06/12/2025 Letter INSPECTION SUMMARY
Upload Documents

Guidelines For Electronically Submitting Documents:

  • Submitted documents should be under 100MB in size.
  • Accepted file extensions:
    • pdf, jpg, xls, doc, xlsx, docx, dwg
  • All plans shall be to scale.
  • Recommended naming conventions:
    • Keep filename consistent.
    • Avoid the use of non-friendly filenames. (ex. k9dk38fj3.pdf)
    • Avoid inappropriate language in filenames.
  • Submitted documents will be stamped at the conclusion of the review.
    • The stamp will be placed in the upper right hand corner of the document. It is recommeded that this area, to the extent possible, be left blank so that no information is lost when the the stamp is applied.
Remember to click the Upload Document button. If you are applying for a New permit, make sure to click the "next step" button after you have completed the upload of documents

Select any documents you wish to provide:





Portal Home